- Messages
- 2
- Likes
- 0
- City
- Big Creek
- State
- KY
- Country
- United States
- What I Drive
- 2015 Fiesta
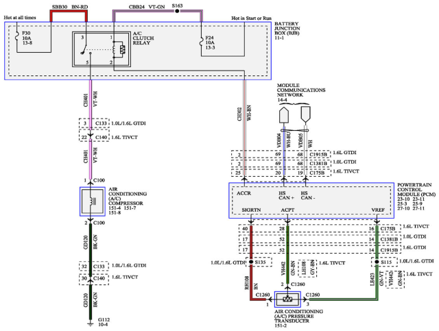
I recently replaced my starter and the AC stopped working. I checked the freon level and it says its over charged...which I know is not right because the AC worked fine before changing the starter. Then I realized the compressor was not kicking on nor the fan that sits behind the radiator. The fan inside works but blows hot air. I've checked the relays for the compressor and AC...not sure what that works but on my diagram it has a snowflake and says AC lol I switched them out with other relays and still nothing. I did go back under the car and trace the wires to the plug for the compressor and its plugged in. I read that disconnecting the battery could cause the blend door to be stuck in the wrong place but wanted to check other ideas before tracing down HVAC relays and fuses like google said to do.
Weeks before we did hear a squeaking noise from under the hood that sounded like a bearing in the area of the belt. Belt is new btw....and thought maybe this was a sign the compressor was going out and it was a coincidence that it stopped after the starter replacement.
Weeks before we did hear a squeaking noise from under the hood that sounded like a bearing in the area of the belt. Belt is new btw....and thought maybe this was a sign the compressor was going out and it was a coincidence that it stopped after the starter replacement.



